



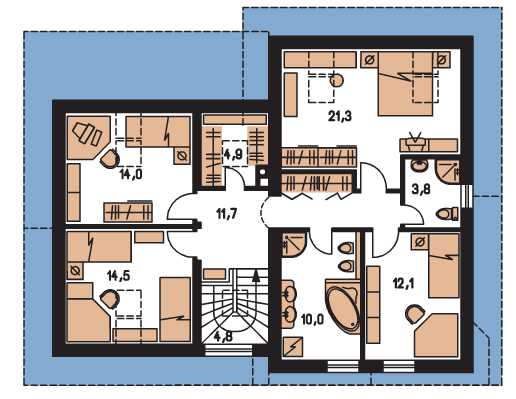
POVRŠINA: Prizemlje - neto : 114.20 m2 | Sprat - neto : 92.30 m2 m2
VREME MONTAŽE KUĆE: 26 do 29 dana
| Termo standard gradnjeenergetski razred A | 135.000,00 € |
| TermoXXL standard gradnje energetski razred A+ | 150.000,00 € |
Cene su izražene u Evrima i važe za teritoriju Srbije.
Sve kuće možete kupiti preko stambenih kredita.
Cene su obračunate sa PVC stolarijom bele boje i četvrtastog oblika.
Klizna vrata i krovni prozori se posebno doplaćuju.
Svaki plan kuće se može modifikovati i izmeniti prema želji kupca.
Na slici je prikazana ilustracija mogućeg izgleda objekta.
Naš tim stručnjaka će vam pomoći da razmotrite sve opcije i donesete najbolju odluku za svoj projekat.

Tošin Bunar 167A
Beograd
tel 063 / 852 - 60 - 36
tel 062 / 877 - 44 - 54
Forus d.o.o.
Kolišla ul. 4
1230 Domžale
+386 (0)41 941 640
SBL nepremičnine d.o.o.
Sveča 12a
2322 Majšperk
+386(0)51 368 739
NetControl Elektro & Sicherheitstechnik KG
Eichbergstrasse 10/1/6
A-2371 Hinterbrühl
STECA Innovation
22, rue Maryse Bastie
St-Etienne-de-St-Geoirs
+33 (0)4 76 55 83 38
Hypercon My Energy House Ltd
Demokratias 60, 2034 Strovolos
1660 Nicosia, Cyprus
info@myenergyhouse.com.cy
© 2024 KUĆA MONT - Sva prava zadržana.
Made by Kowy